Edificio Pucará

VISITE PILOTO
——————
Pucará es un edificio de departamentos, ubicado en Ñuñoa, de diferentes volúmenes en su fachada, los cuales salen de un edificio plano, representando una propuesta arquitectónica diferenciada a lo que existe hoy en el sector. Su arquitectura escalonada hacia el poniente genera una especie de “anfiteatro” hacia la ciudad.

Descarga el brochure del proyecto

Conoce los modelos

Arquitectura y diseño

Edificio Pucará es un proyecto inmobiliario en la comuna de Ñuñoa que presenta una alternativa diferente dentro de la comuna, orientada a integrar el diseño y los espacios de manera funcional. contempla 10 pisos de altura y 78 departamentos con diferentes alternativas de distribución, que incluyen jardín exclusivo en los primeros pisos, terrazas panorámicas y departamentos dúplex.

DISEÑO INTERIOR

El diseño interior de los departamentos tiene un especial énfasis puesto en las terminaciones y materiales para crear un estilo moderno y funcional, basado en tonalidades neutras.

COCINAS INTEGRADAS

El proyecto cuenta con cocinas completamente integradas en algunas de sus tipologías, permitiendo compartir entre los diferentes sectores del departamento en espacios de mayor amplitud.

LUZ NATURAL

Comodidad en su máxima expresión. El dormitorio principal fue diseñado para asegurar el mejor descanso y relajo posible mediante la presencia de luz natural, la buena circulación del aire y una temperatura equilibrada

AMPLIAS TERRAZAS

Variadas alternativas, con opción a terrazas muy amplias, inclusive más grandes que la superficie interior del departamento y otras con terrazas apaisadas, las cuales se distribuyen a todo lo largo del departamento.

TERMINACIONES DE ALTO NIVEL

Enfocarse en los detalles definen el diseño de los espacios en cada departamento. El proyecto cuenta con terminaciones especialmente escogidas para dar continuidad al estilo del departamento.

BAÑOS CON ESTILO

El baño cuenta con terminaciones especialmente escogidas para dar continuidad al estilo del departamento y los baños principales son con ducha in situ con porcelanato y shower door.

HALL DE ACCESO

Al ingresar nos recibe un imponente muro curvo revestido y un mueble hecho de neolith calacatta look mármol que reflejan la excelencia en sus terminaciones, complementando el escenario arquitectónico de Pucará

COWORK

Gracias al Cowork de Pucará ya no tendrás que ir lejos para encontrar un ambiente de trabajo agradable y completo, el cual cuenta con mobiliario diseñado especialmente para otorgar mayor tranquilidad y concentración.

ESPACIOS PARA DISFRUTAR

Pucará cuenta con piscina, quincho y zona de niños conectados a una cómoda terraza y jardín, para disfrutar en primavera y verano tomando sol, compartiendo y relajándose al aire libre.

LOUNGE GOURMET

Lounge Gourmet con kitchenette en donde serás el protagonista de tus propias celebraciones y eventos aprovechando la comodidad, el diseño y la funcionalidad gastronómica que este lugar entrega.

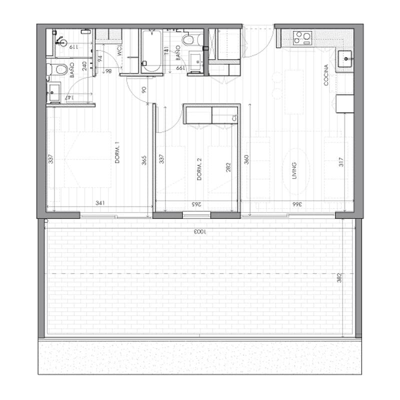
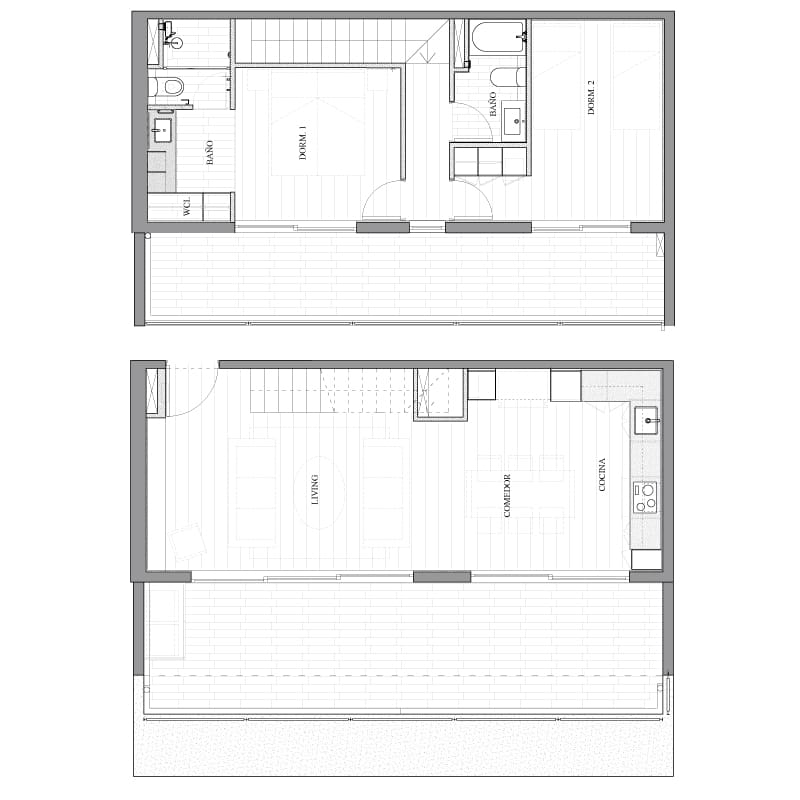
Departamentos

Los departamentos 1, 2 y 3 dormitorios, de 43 m2 a 166 m2 totales, destacan por su selección de materiales, terminaciones únicas y una variedad de tipologías que reflejan la personalidad y carácter único de quienes eligen vivir diferente y ser protagónicos. Creando un estilo moderno y funcional, basado en tonalidades neutras.

Recorrido 360º

Video proyecto

Entorno

El proyecto está ubicado en una zona residencial de la comuna de Ñuñoa con excelente conexión por su cercanía al metro Simón Bolívar (línea 4) y Américo Vespucio, donde ya se está construyendo la autopista Vespucio Oriente. Los departamentos están cercanos a ciclovías y diversos servicios, restaurantes, centros comerciales, colegios, parques y plazas, etc.

CALIDAD DE VIDA

Según el ICVU 2020 realizado por Cámara Chilena de la Construcción, Ñuñoa es la 5ta comuna de la Región Metropolitana con mejor Índice de Calidad de Vida Urbana.

BARRIO EN ÑUÑOA

Recorriendo puedes encontrar almacenes de barrio, plazas, ciclovías y parques cercanos a Diego de Almagro que conectan armónicamente con las principales avenidas de la comuna. La tranquilidad es el denominador común que diferencia la vida en Ñuñoa.

CONECTIVIDAD

Edificio Pucará destaca por su cercanía a la estación Simón Bolívar del metro, ubicada a solo 200 metros del proyecto, lo que permite una excelente conectividad y conexión expedita a diversos puntos de la ciudad.

RECREACIÓN

Podrás disfrutar la cercanía a la Plaza Ñuñoa, Parque Botánico, Parque Ramón Cruz, Parque Juan XXIII y si te gusta hacer panoramas como ver películas, puedes visitar Cinépolis o en Cine Hoyts a solo pasos.

MALL PLAZA EGAÑA

El Mall Plaza Egaña es una excelente opción para ir de compras. De fácil acceso, este cuenta con tres pisos de amplia oferta comercial y un cuarto piso dedicado a la gastronomía y la entretención.

RESTAURANTES

Desde cocina internacional hasta típicas fuentes de soda, pasando por bares y cervecerías. Un espacio para disfrutar de día o de noche la comida y entretención que ofrece este espacio a solo pasos de tu hogar.

Mapa de ubicación

Información de contacto

Sala de Ventas

Horario

Teléfono

Email








    Agendar videollamada Agendar una videollamada

    Cotizar Cotiza tu depto